Клиент
Minimalist
Локация
г. Ташкент
Год
2025
Площадь
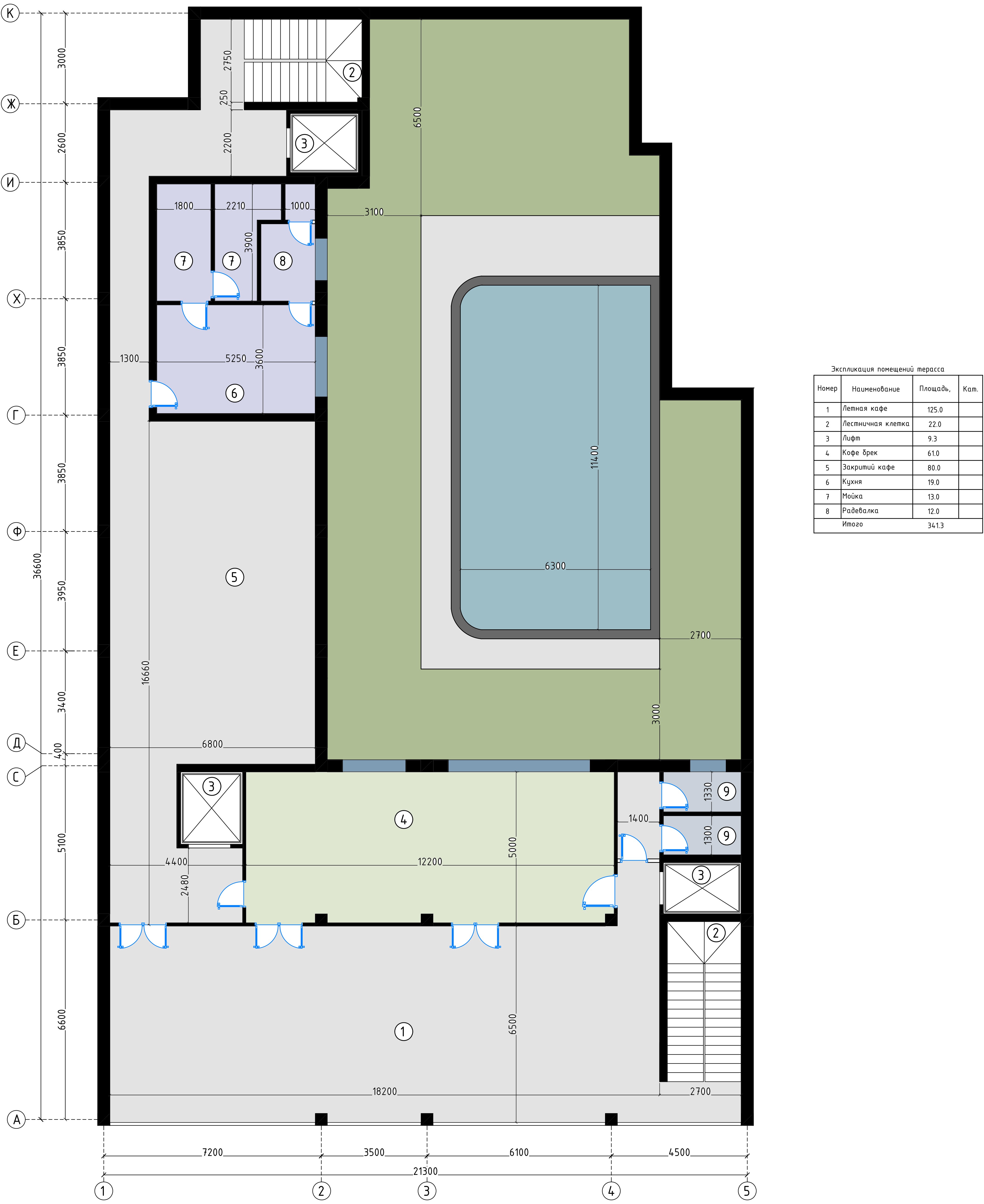
4000 кв.м
Вид работ
Комплексная проектная документация
«Функциональная и предсказуемая архитектура, создающая комфорт для кратковременных и длительных гостей.»
Проект гостиницы создан с учетом потребностей туристов и деловых гостей. Планировка включает удобные номера разных категорий, функциональное лобби и вспомогательные зоны для персонала.
Архитектура подчеркивает компактность и функциональность здания. Фасад выполнен в сдержанном стиле, обеспечивающем гармоничное включение в городской контекст. Внутренние пространства ориентированы на комфорт и логичную навигацию.
Инженерные решения обеспечивают бесперебойную работу гостиницы: климат-контроль, вентиляционные сценарии, пожарная безопасность и энергоэффективность. Проект рассчитан на долгосрочную эксплуатацию с минимальными затратами на обслуживание.





